ru
English
Русский
Жилые комплексы
Апартаменты
Локация
Блог
О нас
Контакты
Сейчас работаем
+7 (495) 085-37-77
Поиск апартаментов
Жилые комплексы
Апартаменты
Локация
Блог
О нас
Контакты
Евгения
Эксперт по недвижимости
Свяжитесь с нами в WhatsApp для получения последних предложений Дубай Марина
+7 (495) 085-37-77
Главная
Квартиры
пентхаус
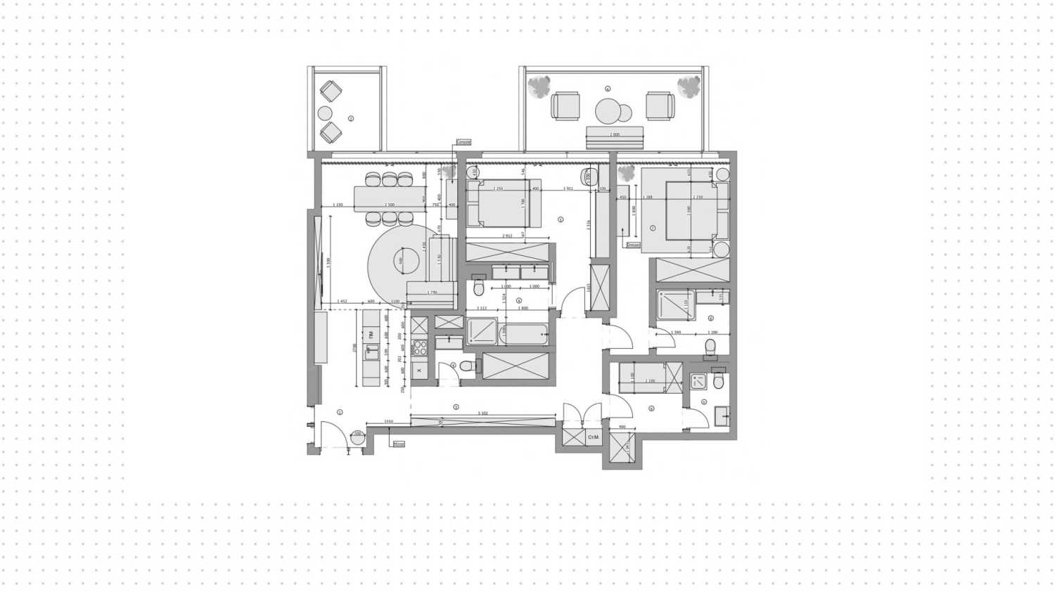
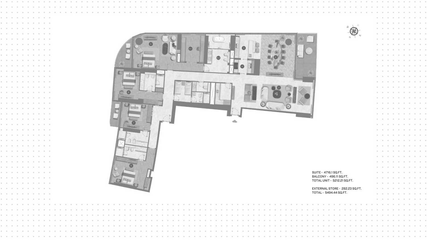
пентхаус в Marina Star, 562 м², №65971
Онлайн экскурсия
Онлайн экскурсия
App.kinds_about.penthouse
App.kinds.penthouse с 4 спальнями в комплексе Marina Star. App.kinds.penthouse с площадью 562 м² на 26 этаже из 27, с отделкой. Окна: панорамные. Вид из окон: 360 view. Реализация проекта запланирована на 4 квартал 2023 года.
Al marsa Area, Al Seba St
Hammersmith & City line
4 спальни
26 этажей |
562 м²
$8 240 000
$15 000 за м²
Назначить встречу
Эльдар
Эксперт по недвижимости
+7 (495) 085-37-77
Скачать презентацию
Marina Star
Marina Star — это 27-этажная башня в самом сердце района Dubai Marina, словно вытянувшаяся к небу из прибрежных волн
Подробнее
Экстерьер
Christie's International Real Estate has successfully marketed high-value real estate around the world for more than 30 years.
1
/
0
Презентация апартаментов пентхаус, 562 м² в Marina Star для жизни и инвестиций
15 новостроек по цене от $354 000
скачать
Заполняя форму вы даете согласие на обработку персональных данных
Время скачивания: 6 секунд
PDF 13 MB
Загружено 14 декабря
Больше похожих квартир
по стоимости
по стоимости
по площади
апартаменты с 3-мя спальнями
2 этажа
3 спальни
212 м²
$2 210 000
апартаменты с 2-мя спальнями
11 этажей
2 спальни
182 м²
$1 320 000
апартаменты с 2-мя спальнями
40 этажей
2 спальни
117 м²
$572 000
апартаменты с 2-мя спальнями
15 этажей
2 спальни
265 м²
$2 430 000
апартаменты с 1-й спальней
25 этажей
1 спальня
75 м²
$749 000
апартаменты с 1-й спальней
30 этажей
1 спальня
115 м²
$1 350 000
показать 6 из 916
апартаменты с 3-мя спальнями
3 этажа
3 спальни
185 м²
$1 260 000
апартаменты с 4-мя спальнями
29 этажей
4 спальни
225 м²
$3 170 000
апартаменты с 3-мя спальнями
23 этажа
3 спальни
230 м²
$3 220 000
апартаменты с 2-мя спальнями
11 этажей
2 спальни
202 м²
$3 090 000
апартаменты с 1-й спальней
55 этажей
1 спальня
65 м²
$749 000
апартаменты с 2-мя спальнями
10 этажей
2 спальни
120 м²
$626 000
показать 6 из 916
Оставьте заявку, и мы организуем для вас показ
15 новостроек по цене от $354 000
Заказать звонок
Заполняя форму вы даете согласие на обработку персональных данных
Экскурсия по квартире
Планировки
Презентация апартаментов пентхаус, 562 м² в Marina Star для жизни и инвестиций
15 новостроек по цене от $354 000
скачать
Заполняя форму вы даете согласие на обработку персональных данных
Время скачивания: 6 секунд
PDF 13 MB
Загружено 14 декабря
Презентация апартаментов пентхаус, 562 м² в Marina Star для жизни и инвестиций
15 новостроек по цене от $354 000
скачать
Заполняя форму вы даете согласие на обработку персональных данных
Время скачивания: 6 секунд
PDF 13 MB
Загружено 14 декабря
Оставьте заявку, и мы организуем для вас показ
15 новостроек по цене от $354 000
Заказать звонок
Заполняя форму вы даете согласие на обработку персональных данных
Евгения
Консультант по недвижимости
+7 (495) 085-37-77
Этот сайт использует cookie, чтобы вам было удобнее им пользоваться.
Принять
Узнать больше