Поиск апартаментов

апартаменты с 2-мя спальнями в Cavalli Tower, 118 м², №59041

Об апартаменте
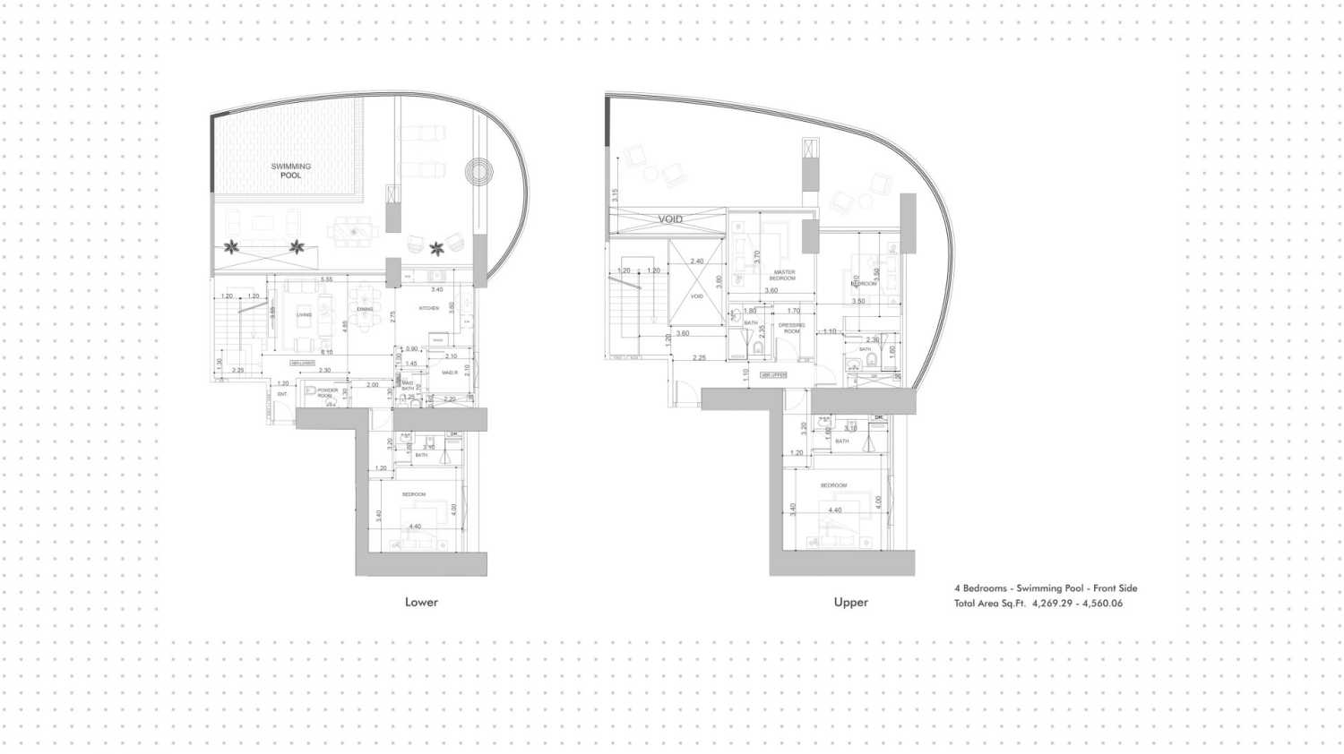
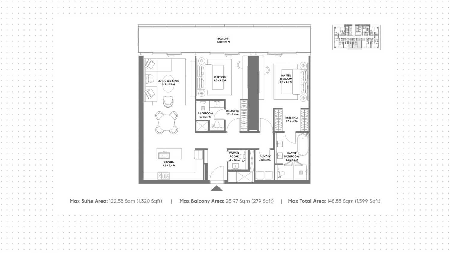
Апартаменты с 2 спальнями в комплексе Cavalli Tower. Апартаменты с площадью 118 м² на 19 этаже из 70, с отделкой. Окна: панорамные. Реализация проекта запланирована на 4 квартал 2026 года.
Al Sufouh, Dubai Marina
Hammersmith & City line

2 спальни

19 этажей |

118 м²

$1 090 000
$9 208 за м²
Назначить встречу
expert
Эльдар
Эксперт по недвижимости
+7 (495) 085-37-77
Cavalli Tower
Cavalli Casa – это 70-этажная башня, построенная Роберто Кавалли на пристани для яхт Дубая
Экстерьер
Christie's International Real Estate has successfully marketed high-value real estate around the world for more than 30 years.
1/5
Презентация апартаментов с 2-мя спальнями, 118 м² в Cavalli Tower для жизни и инвестиций
15 новостройка по цене от $150 000
Время скачивания: 6 секунд PDF 13 MB Загружено 21 декабря
mockup
Больше похожих квартир
по стоимости
по стоимости
по площади
Оставьте заявку, и мы организуем для вас показ
15 новостройка по цене от $150 000
mockup
reward reward reward
Экскурсия по квартире

Интерьер

Презентация апартаментов с 2-мя спальнями, 118 м² в Cavalli Tower для жизни и инвестиций
15 новостройка по цене от $150 000
Время скачивания: 6 секунд PDF 13 MB Загружено 21 декабря
mockup